TGB355 ⅰ 1.1KW-6P 1.1KW-8p
tingertech
1100W
50Hz ، 60Hz ، 50/60Hz
| دستیابی: | |
|---|---|
| مقدار: | |
مصنوعات کی تفصیل
ٹی جی بی سیریز سینٹرفیوگل فین ایک قسم کا ائر کنڈیشنگ فین ہے۔ سینٹرفیوگل فین امپیلر تین مراحل بیرونی موٹر کے ذریعہ کارفرما ہے۔ یہ اعلی ٹکنالوجی کا استعمال کرکے اور کم شور اور کمپیکٹ ڈھانچے کے ساتھ تیار کیا گیا تھا۔ یہ خاص طور پر ائر کنڈیشنگ کے لئے ڈیزائن کیا گیا تھا۔ اس سلسلے کی سنٹرفیوگل فین کی بہاؤ کی شرح اور کل دباؤ کی حد 1000m /h سے 20000m /h اور 200Pa سے 850PA تک ہے۔ یہ ائر کنڈیشنگ اور دیگر قسم کے مداحوں کے نظام کے لئے مثالی سامان ہے۔

ٹی جی بی سیریز سینٹرفیوگل فین میں گردشوں کی دو سمت ، بائیں ہاتھ کی گردش (LG) اور دائیں ہاتھ کی گردش (RD) ہے۔ ڈرائیو سائیڈ سے دیکھنا ، اگر سینٹرفیوگل فین امپیلر گھڑی کی سمت گھومتا ہے تو ، یہ بائیں ہاتھ (LG) گردش ہے۔ اگر سینٹرفیوگل فین بلیڈ کاؤنٹر گھڑی کی سمت میں گھومتا ہے تو ، یہ دائیں ہاتھ (RD) ہے۔
ذیل میں انجیر کے مطابق ، ٹی جی بی سیریز سینٹرفیوگل فین ایس کو چار ایئر آؤٹ لیٹ سمتوں میں بنایا جاسکتا ہے: 0 ° ، 90 ° ، 180 ° ، اور 270 °۔

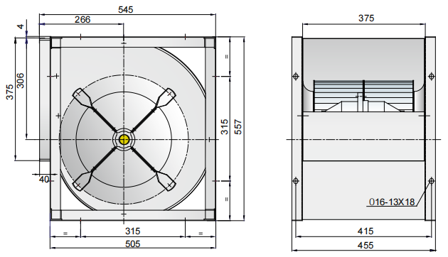
ٹی جی بی سیریز کے سینٹرفیوگل فین میں سینٹرفیوگل فین ہاؤسنگ ، سینٹرفیوگل فین امپیلرز ، سینٹرفیوگل فین بیس پلیٹ (فریم) ، موٹر ، شافٹ آستین اور ایئر آؤٹ لیٹ فلج شامل ہیں۔
سینٹرفیوگل فین ہاؤسنگ گرم جستی والی اسٹیل شیٹ سے بنی ہے۔ سینٹرفیوگل فین کی سائیڈ پلیٹوں میں انلیٹس شنک شامل ہیں جو انلیٹ کی حالت کے لئے بہترین ایروڈینامکس کے ساتھ ڈیزائن کیے گئے ہیں۔ سنٹرفیوگل فین بلور کا کتاب اسپاٹ ویلڈنگ کے ذریعہ سائیڈ پلیٹوں پر طے ہے۔ سینٹرفیوگل فین اسکرول کے پہلو میں ، گاہک کو درکار ہوائی آؤٹ لیٹ سمت کے مطابق تنصیب کرنے کے لئے گری دار میوے کو تیز کرنے کے ل advance پیشگی سوراخوں کی ایک سیریز موجود ہے۔
فارورڈ مڑے ہوئے Sent سینٹرفیوگل فین امپیلر اعلی درجے کی گرم ، شہوت انگیز جستی اسٹیل شیٹ سے تعمیر کیا گیا ہے۔ اعلی کارکردگی اور کم ترین شور کی سطح کو حاصل کرنے کے ل سینٹرفیوگل فین بلیڈ سینٹر پلیٹ پر اور آخری رنگ پر فکسنگ گرفت پریس کے ساتھ طے کیا جاتا ہے۔ سینٹرفیوگل فین وہیل زیادہ سے زیادہ طاقت کے ساتھ تعمیر کیا گیا ہے جو زیادہ سے زیادہ طاقت کے ساتھ مستقل آپریشن کو برداشت کرتا ہے۔ تمام سنٹرفیوگل فین امپیلرز پہیے میں توازن کے ل even قومی معیار کے مطابق متوازن ہیں۔
ٹی جی بی سیریز سینٹرفیوگل فین بیس پلیٹ اعلی معیار کی گرم جستی والی اسٹیل شیٹ سے بنا ہے ، اور مضبوط کرنے کا انوکھا عمل کافی طاقت کو یقینی بناتا ہے۔ سینٹرفیوگل فین بیس پلیٹ کی تنصیب کی سمت صارفین کی مختلف ضروریات کے مطابق کی جاسکتی ہے ، 315 سے زیادہ سینٹرفیوگل فین فریم زاویہ اسٹیل اور فلیٹ اسٹیل سے بنا ہے۔ فریم کے چار اطراف ، سنٹرفیوگل فین بلورز کی مختلف انسٹالیشن سمتوں میں صارفین کی ضروریات کو پورا کرنے کے لئے تنصیب کے لئے سوراخ کیے گئے ہیں۔
ٹی جی بی سیریز میں استعمال ہونے والی سینٹرفیوگل فین موٹر سینٹرفیوگل کے پرستار کم شور ہیں تین مراحل میں بیرونی روٹرز کے ساتھ اسینکرونس اے سی فین موٹرز۔ سینٹرفیوگل فین امپیلر AC فین موٹر کے بیرونی سانچے پر نصب ہے۔ سسٹم میں بدلنے والے بوجھ کو پورا کرنے کے لئے تین فیز وولٹیج باقاعدہ ، سلیکن کنٹرولڈ ، وولٹیج ریگولیٹر ، فریکوینسی کنورٹر اور وغیرہ کے ساتھ فراہم کردہ موٹر گردش کی رفتار کو تبدیل کیا جاسکتا ہے۔
سینٹرفیوگل فین فلانج جستی اسٹیل سے بنا ہے۔ سنٹرفیوگل فین اسکرول سے فلانج اجزاء کے رابطے نان ویلڈنگ کے عمل کا استعمال کرتے ہوئے بنائے جاتے ہیں۔ یہ ایک اچھی طرح سے فلانج کی شکل برقرار رکھتا ہے جبکہ کافی طاقت اور سختی بھی فراہم کرتا ہے۔ طول و عرض اور فلانج کی قسم ذیل میں دکھائی گئی ہے۔

| قسم | a | بی | c | ڈی | ای | f | جی | h | میں |
| 200 ⅰ | 122.5 |
119.5 | - | - | 265 | 259 | 225 | 219 | 10 |
| 200 ⅱ | 160 | 125 | - | - | 340 | 270 | 300 | 230 | 10 |
| 225 ⅰ | 139 | 133 | - | - | 298 | 286 | 258 | 246 | 10 |
| 225 ⅱ | 154 | 133 | - | - | 328 | 286 | 288 |
246 | 10 |
| 225 ⅲ | 160 | 146.5 | - | - | 340 | 313 | 300 | 273 | 10 |
| 250 ⅰ | 150.5 | 146.5 | - | - | 321 | 313 | 281 | 273 | 10 |
| 250 ⅱ | 160 | 146 | - | - | 340 | 312 | 300 | 272 | 10 |
| 280 ⅰ | 160 | 162.5 | - | - | 340 | 345 | 300 | 305 | 10 |
| 280 ⅱ | 188 | 162.5 | - | - | 396 | 345 | 356 | 305 | 10 |
| 315 ⅰ | - | - | 140 | 140 | 394 | 394 | 338 | 338 | 13 |
| 315 ⅱ | - | - | 140 | 140 | 456 | 394 | 400 | 338 | 13 |
| 355 ⅰ | - | - | 140 | 140 | 431 | 431 | 375 | 375 | 13 |
| 355 ⅱ | - | - | 140 | 140 | 487 | 431 | 431 | 375 | 13 |
| 400 ⅰ | - | - | 140 | 140 | 475 | 475 | 419 | 419 | 13 |
| 400 ⅱ | - | - | 140 | 140 | 516 | 475 |
460 | 419 | 13 |
| 450 ⅰ | - | - | 170 | 170 | 525 | 525 | 469 | 469 | 13 |
| 450 ⅱ | - | - | 170 | 170 | 586 | 525 | 530 | 469 | 13 |
| 500 ⅰ | - | - | 170 | 170 | 562 | 562 | 506 | 506 | 13 |
| 500 ⅱ | - | - | 170 | 170 | 656 | 562 | 600 | 506 | 13 |
نوٹ : کا سائز یونٹ سینٹرفیوگل فین اور مجموعی سائز ایم ایم ہیں۔ شکل میں
1) درجہ بندی سینٹرفیوگل فین موٹر پاور ، سینٹرفیوگل فین حصوں میں سے ایک ، جیسا کہ اس کا حساب لیا جاتا ہے ، شاید غیر محدود خارج ہونے والے بہاؤ کے ساتھ سینٹرفیوگل فین کو چلانے کے لئے کافی نہیں ہوسکتا ہے۔ غیر محدود خارج ہونے والے مادہ والے آؤٹ لیٹ کے ساتھ سینٹرفیوگل بلور فین کو چلانے کے نتیجے میں بہاؤ کی شرح ہوگی جو مخصوص مداحوں کی صلاحیتوں سے زیادہ ہے۔ اس طرح کا آپریشن جلدی سے چلنے والی موٹر کو جلا دے گا اور سینٹرفیوگل فین کو نقصان پہنچائے گا۔ اس بات کو یقینی بنانے کے لئے کہ سینٹرفیوگل فین پرفارمنس چارٹ پر فراہم کردہ زیادہ سے زیادہ درجہ بندی شدہ بہاؤ کو اس بات کا یقین کرنے کے لئے سینٹرفیئل فین کو چلانے میں بہت احتیاط برتنی ہوگی ، اس سے تجاوز نہیں کیا گیا ہے۔
2) سنٹرفیوگل ڈکٹ فین کی کارکردگی کو موٹر ریٹیڈ اسپیڈ کے تحت جانچا جاتا ہے ، ہم موٹر اسپیڈ کو تبدیل کرکے صارف کی اصل ضرورت کو پورا کرسکتے ہیں۔
3) نقل و حمل ، بوجھ اور انک لوڈ کے دوران سینٹرفیوگل فین / انچ بنانے والے کی خصوصی دیکھ بھال کی جانی چاہئے۔ سینٹرفیوگل بنانے والا پرستار ان علاقوں میں استعمال کے لئے محدود ہے جہاں ہوائی مادے غیر سنجیدہ ، غیر زہریلا اور غیر برخاستگی ہیں۔
4) تنصیب کے بعد ، سینٹرفیوگل فین امپیلر کو ہاتھ سے یا کسی رنچ کے استعمال سے اس بات کا یقین کرنے کے لئے جانا چاہئے کہ یہ دوسرے سنٹرفیوگل فین حصوں سے ٹکرائے بغیر آزادانہ طور پر مڑ جائے۔ ایک بار جب یہ سب ہو گیا تو ، سنٹرفیوگل بنانے والا پرستار عام طور پر کمیشن کیا جاسکتا ہے۔
5) سینٹرفیوگل بلور فین کا ایک لچکدار کنیکٹر فین آؤٹ کے درمیان استعمال کیا جانا چاہئے فلینج اور اس کے ملن ڈکٹ ورک۔ فلیکس کنیکٹر کو زیادہ سے زیادہ نہیں ہونا چاہئے۔
6) اس بات کو یقینی بنانے کے لئے اسکرول اور کیسنگ کے اندر کی جانچ پڑتال کرنے کی ضرورت ہے کہ سنٹرفیوگل فین ہاؤسنگ کے اندر کوئی غیر ملکی چیزیں نہیں ہیں ، جیسے ٹولز یا ڈھیلے حصے۔
7) سینٹرفیوگل باکس فین کنڈینسر موٹر اور سینٹرفیوگل فین پہیے کی گھماؤ سمتوں کی جانچ پڑتال کی جانی چاہئے تاکہ یہ یقینی بنایا جاسکے کہ وہ تصریح اور خریداری کے احکامات کی تعمیل میں ہیں۔
8) آرڈر کرنے کے دوران ، سینٹرفیوگل فین اقسام ، سینٹرفیوگل فین موٹر ٹائپ ، سینٹرفیوگل فین ایئر فلو ، سینٹرفیوگل فین ایئر پریشر اور دیگر سنٹرفیوگل فین پیرامیٹرز کو بیان کرنا ضروری ہے۔


سوالات
ہم سے رابطہ کریں